Maison à vendre à Remich (lu)
3 260 000 €
chambre(s)
salle de bain
garage
surface
5
4
6
350 m²
surface du terrain
année de construction
pass énergétique
Isolation thermique
7.64 ar
2026
Description du bien
MAGNIFIQUE VILLA avec piscine EN VEFA – REMICH
Veuillez contacter pour de plus amples informations :
M. Bardia ALLAMI
Tél: +352 621 150 966
Mail: bardia.allami@kwluxembourg.com
L’agence Keller Williams Luxembourg vous dévoile sa nouvelle signature à Remich : une villa de prestige avec piscine nichée sur un terrain de 7,64 ares. Un emplacement rare et recherché, garantissant une vue imprenable sur les paysages viticoles et la vallée de la Moselle.
Une architecture exceptionnelle Pensée selon le potentiel constructible maximal autorisé, cette villa séduit par :
- Sa piscine extérieure chauffée de 72 m²,
- Ses volumes généreux,
- Son living avec 6 mètres de hauteur sous plafond,
- Ses larges baies vitrées panoramiques,
- Ses terrasses ouvertes sur la nature,
- Son garage fermé pour 4 véhicules,
- 2 places de parking extérieurs.
Ce bien est composé de :
REZ-DE-CHAUSSEE :
- Hall d'entrée (12,41 m²),
- Garage pour 4 voitures avec espace vélos (77 m²),
- Bureau (11 m²) avec accès au jardin,
- Local technique (8,79 m²),
- 3 caves (12,31 m² / 5 m² / 3,70 m²).
REZ-DE-JARDIN :
- Pièce de vie gigantesque de plus de 103 m² avec living de 6 mètres de hauteur sous plafond avec accès direct par baies vitrées à : Terrasse arrière avec sa piscine chauffé de 72 m², Jardin paysager, Terrasse avant de 14 m² avec vue dominante sur les vignes et la Moselle.
- Cuisine ouverte
- WC séparé avec lavabo,
- Débarras (2,35 m²).
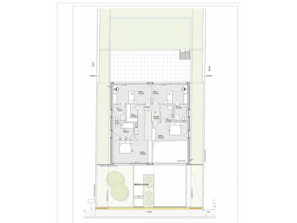
1ER ÉTAGE :
- Hall de nuit (4,52 m²),
- Suite parentale de plus de 27 m² avec vue sur les vignobles et la Moselle avec sa salle d'eau de 9 m² et son dressing de presque 5 m²,
- Chambre n°2 (17,75 m²) avec salle d'eau de plus de 5 m²,
- Chambre n°3 (16,47 m²) avec salle d'eau de plus de 5 m²,
- Chambre n°4 (15,26 m²) avec salle d'eau de plus de 5 m².
Chaque chambre bénéficie de sa propre salle d'eau, ainsi offrant un confort et une intimité absolue.
DÉBUT DE CONSTRUCTION PRÉVU :
- 4em semestre 2026
- Durée estimée des travaux : environ 16 mois.
- Prix : (TVA 3 % incluse).
- Le projet est encore modifiable selon les souhaits de l'acquéreur.
- Cahier des charges complet et plans disponibles sur demande.
Cette villa moderne combine élégance contemporaine et performance énergétique de haut niveau (classe A/A), avec chauffage au sol, pompe à chaleur, ventilation double flux, triple vitrage et isolation renforcée. Les matériaux et finitions ont été sélectionnés avec soin pour offrir confort et modernité.
Idéalement située dans une rue paisible et ensoleillée, cette demeure profite d'un environnement sans vis-à-vis grâce à sa proximité avec une zone verte. Elle se distingue par sa vue panoramique imprenable surplombant la Moselle et ses coteaux de vignes.
Ce projet d’exception cible une clientèle en quête d’exclusivité, privilégiant des volumes généreux baignés de lumière et une architecture contemporaine audacieuse. Alliant technicité de pointe et finitions personnalisables, cette demeure s’inscrit dans l’un des secteurs les plus prestigieux de la Moselle luxembourgeoise.
- Frais d'agence à charge de la partie venderesse.
- Cahier des charges complet et les plans sont disponibles sur demande.
Veuillez contacter pour de plus amples informations :
M. Bardia ALLAMI
Tél: +352 621 150 966
Mail: bardia.allami@kwluxembourg.com
L’agence Keller Williams Luxembourg vous dévoile sa nouvelle signature à Remich : une villa de prestige avec piscine nichée sur un terrain de 7,64 ares. Un emplacement rare et recherché, garantissant une vue imprenable sur les paysages viticoles et la vallée de la Moselle.
Une architecture exceptionnelle Pensée selon le potentiel constructible maximal autorisé, cette villa séduit par :
- Sa piscine extérieure chauffée de 72 m²,
- Ses volumes généreux,
- Son living avec 6 mètres de hauteur sous plafond,
- Ses larges baies vitrées panoramiques,
- Ses terrasses ouvertes sur la nature,
- Son garage fermé pour 4 véhicules,
- 2 places de parking extérieurs.
Ce bien est composé de :
REZ-DE-CHAUSSEE :
- Hall d'entrée (12,41 m²),
- Garage pour 4 voitures avec espace vélos (77 m²),
- Bureau (11 m²) avec accès au jardin,
- Local technique (8,79 m²),
- 3 caves (12,31 m² / 5 m² / 3,70 m²).
REZ-DE-JARDIN :
- Pièce de vie gigantesque de plus de 103 m² avec living de 6 mètres de hauteur sous plafond avec accès direct par baies vitrées à : Terrasse arrière avec sa piscine chauffé de 72 m², Jardin paysager, Terrasse avant de 14 m² avec vue dominante sur les vignes et la Moselle.
- Cuisine ouverte
- WC séparé avec lavabo,
- Débarras (2,35 m²).
1ER ÉTAGE :
- Hall de nuit (4,52 m²),
- Suite parentale de plus de 27 m² avec vue sur les vignobles et la Moselle avec sa salle d'eau de 9 m² et son dressing de presque 5 m²,
- Chambre n°2 (17,75 m²) avec salle d'eau de plus de 5 m²,
- Chambre n°3 (16,47 m²) avec salle d'eau de plus de 5 m²,
- Chambre n°4 (15,26 m²) avec salle d'eau de plus de 5 m².
Chaque chambre bénéficie de sa propre salle d'eau, ainsi offrant un confort et une intimité absolue.
DÉBUT DE CONSTRUCTION PRÉVU :
- 4em semestre 2026
- Durée estimée des travaux : environ 16 mois.
- Prix : (TVA 3 % incluse).
- Le projet est encore modifiable selon les souhaits de l'acquéreur.
- Cahier des charges complet et plans disponibles sur demande.
Cette villa moderne combine élégance contemporaine et performance énergétique de haut niveau (classe A/A), avec chauffage au sol, pompe à chaleur, ventilation double flux, triple vitrage et isolation renforcée. Les matériaux et finitions ont été sélectionnés avec soin pour offrir confort et modernité.
Idéalement située dans une rue paisible et ensoleillée, cette demeure profite d'un environnement sans vis-à-vis grâce à sa proximité avec une zone verte. Elle se distingue par sa vue panoramique imprenable surplombant la Moselle et ses coteaux de vignes.
Ce projet d’exception cible une clientèle en quête d’exclusivité, privilégiant des volumes généreux baignés de lumière et une architecture contemporaine audacieuse. Alliant technicité de pointe et finitions personnalisables, cette demeure s’inscrit dans l’un des secteurs les plus prestigieux de la Moselle luxembourgeoise.
- Frais d'agence à charge de la partie venderesse.
- Cahier des charges complet et les plans sont disponibles sur demande.
Caractéristiques
intérieur
débarras, cave, triple vitrage,
extérieur
emplacement extérieur, emplacement intérieur, terrasse, piscine,
confort
wc séparé, salle de bain,
cuisine
cuisine ouverte
divers
nouveau
sécurité
alarme, vidéophone,
Détail de la vente
Honoraires à la charge
N.C
Montant honoraires
N.C
Charges mensuelles
N.C
TVA appliquée
N.C
Montant Commission
N.C
Frais de notaire
N.C